Chuyên gia sẽ tư vấn cho độc giả Hằng Lê xây nhà 165m2 theo mong muốn của mình.
- · Sở hữu phòng khách vạn người mê với những mẫu bàn trà mạ vàng mới nhất
- · Phòng khách gia đình được yêu thích nhờ mẫu bàn trà mạ titan này
- · Cứ đẹp nhẹ nhàng nhưng mẫu bàn trà mạ PVD này vẫn đủ khiến bao người phát ghen
- · Khám phá các mẫu bàn trà mặt đá được yêu thích cho không gian phòng khách sang chảnh
Hỏi:
Chuyên mục Nhà đẹp thân mến,
Tôi đã đọc các bài tư vấn trên chuyên mục và rất muốn nhờ các chuyên gia tư vấn cho trường hợp nhà tôi.
Diện tích đất nhà tôi là 8.73m x 19m = 165,87m, hướng Đông (diện tích còn lại sau khi đã trừ đường đi và mương 8m*17m).
Tôi muốn xây nhà kiểu cấp 4 giả biệt thự, nhà dạng L, có tầng lửng, chiều cao nhà vừa phải, có sân trước 3m, sân sau 1m, hàng rào bao quanh nhà nhưng tận dụng một bức tường để làm hàng rào. Với hiên nhà, có tầng cấp 5 bậc trước khi bước lên hiên. Còn tầng trệt, tôi muốn gồm có 1 phòng khách, 1 nhà vệ sinh nhỏ , 1 phòng bếp + phòng ăn, nơi để xe máy, láng nước nhỏ đề rửa chén, nơi để giặt đồ.
Ngoài ra, không gian tiếp khách và bếp ăn trải dài trong cùng một không gian và được ngăn cách bởi vách ngăn tượng trưng thể hiện rõ chức năng giữa hai không gian nhưng vẫn tạo được sự hài hoà với nhau.
Bên cạnh đó, tôi cũng muốn không gian bếp ăn thoáng mát và tràn ngập ánh sáng thông qua cửa ngách ra sân sau. Ở phòng khách tôi cần một khoảng không gian tường để gắn một bàn thờ, vậy nhờ chuyên mục tư vấn xem nên để ở đâu để vừa trang nghiêm vừa đẹp.
Cuối cùng là tầng lửng sẽ gồm 1 phòng ngủ của bố mẹ và 2 phòng ngủ khác, 1 phòng vệ sinh chung.
Một đều nữa tôi muốn là nhà tận dụng càng nhiều ánh sáng càng tốt.
Hằng Lê
Trả lời:
Xin chào bạn!
Cám ơn bạn đã gửi câu hỏi về cho chuyên mục. Theo yêu cầu của bạn chúng tôi xin tư vấn cho bạn như sau: Với diện tích như bạn cung cấp, chúng tôi thiết kế với tiêu chí không gian mở cho toàn bộ ngôi nhà. Ngoài ra, bạn có yêu cầu xây nhà 1 tầng cộng thêm 1 tầng lửng nhưng để đạt mong muốn "1 phòng ngủ của bố mẹ và 2 phòng ngủ khác, 1 phòng vệ sinh chung" thì xây tầng lửng sẽ hơi chật và bí bách. Chưa kể chi phí xây tầng lửng như thế cũng gần tương đương với xây lầu nên chúng tôi đã tư vấn cho bạn thay tầng lửng bằng lầu. Cụ thể:
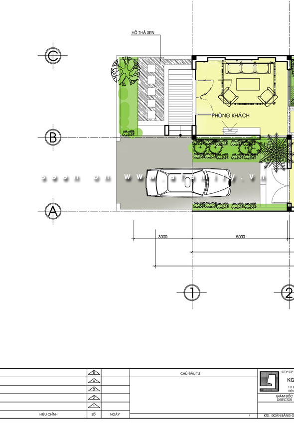
- Tầng trệt: Phía trước là phòng khách, kết hợp với tủ thờ kệ ti vi. Vị trí giếng trời - sân trong là không gian kết nối giữa phòng khách và phòng ăn.

Toàn bộ sơ đồ tầng trệt

Một nửa bên trái sơ đồ tầng trệt phóng to


Một nửa bên phải sơ đồ tầng trệt phóng to
- Lầu 1 : Bao gồm 3 phòng ngủ- các phòng đều được thông thoàng tối đa nhờ giếng trời và các khoàng sân trống.

Toàn bộ sơ đồ lầu 1

Một nửa bên trái sơ đồ lầu 1 phóng to

Một nửa bên phải sơ đồ lầu 1 phóng to
Về chi phí xây dựng: Nếu để tiết kiệm bạn có thể chọn những chủng loại vật tư hoàn thiện trong nước sản xuất dưới sự tư vấn của kiến trúc sư sao cho đạt được yếu tố thẩm mỹ và tài chính.
Chúc bạn xây được ngôi nhà như ý.
Công ty CP Thiết kế - Xây dựng Không Gian Trẻ Vina
Hãy Comment chuẩn SEO vừa làm tốt cho site của Bạn vừa không bị GOOGLE phạt. Nếu muốn lấy backlink hãy chèn URL không chèn code gắn text link. Biểu tượng hài hướcEmoticon